緊急情報
ここから本文です。
更新日:2025年8月14日
| 所在地 | 浜松市浜名区三ヶ日町三ヶ日166番地の1 | ||
|---|---|---|---|
| 交通条件 |
遠鉄バス「三ヶ日」停留所徒歩8分 天竜浜名湖鉄道「三ヶ日」駅徒歩15分 |
||
| 建設年度 | 平成21~23年度 | ||
| 規模・構造 | 中層耐火構造5階建・2階建 | 3棟56戸 | |
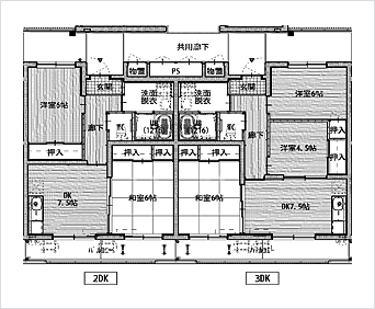
| 間取り | 2DK・3DK | 一部単身入居可 | |
| 電気容量 | 30A | ||
| 部屋面積 | 51.34~59.94平方メートル | ||
|
入居時家賃額 満たす世帯) |
18,200~45,600円 家賃は毎年改定するため、金額は目安となります。 |
||
| その他費用 | 自治会費・共益費等 (自治会費・共益費は団地や棟によって異なります。) |
||
| 駐車場 |
有(2,100円/月) 一世帯につき一区画使用可能(要申請) |
||
| 駐輪場 | 有 | ||
| 物置 | 有 | ||
| 上下水道 | 上水道・下水道 | ||
| ガス種別 | プロパンガス | ||
| エレベーター | 有(2号棟除く) | ||
| ひかりインターネット |
マンションタイプ利用可能 (各戸への引込工事費用、毎月の通信料は利用者負担です。) |
||
| 学区 |
三ヶ日西小学校 三ヶ日中学校 |
||
| 入居条件の緩和 |
無 |
||
| 備考 |
スーパーマーケット(遠鉄ストア三ヶ日店)徒歩4分 ホームセンター(コメリハード&グリーン三ヶ日店)徒歩6分 薬局(ウェルシア三ヶ日店)徒歩5分 |
||
玄関

台所

トイレ

風呂

部屋内部

間取り

外観

画像はあくまで一例です。
お問い合わせ
より良いウェブサイトにするためにみなさまのご意見をお聞かせください