緊急情報

サイト内を検索

ここから本文です。

更新日:2025年8月14日

井伊谷団地

所在地 浜松市浜名区神宮寺町1番10号
交通条件 遠鉄バス「井伊谷宮前」停留所徒歩6分
建設年度 平成22~23年
規模・構造 鉄筋コンクリート2階建 2棟28戸
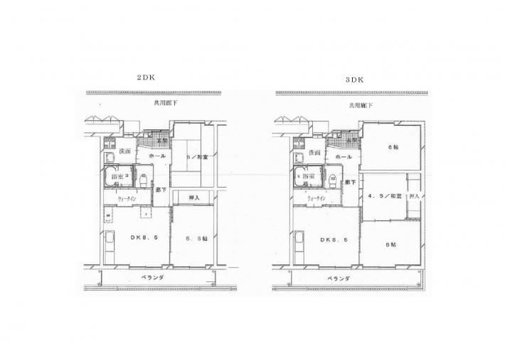
間取り 3DK・2DK 一部単身入居可
電気容量 30A
部屋面積 51.18~59.48平方メートル

入居時家賃額
(入居収入基準を

満たす世帯)

18,500~42,300円
(世帯収入・部屋の広さ等によって金額が異なります。)

家賃は毎年改定するため、金額は目安となります。

その他費用 自治会費・共益費等
(団地や棟によって異なります。)
駐車場

有(2,100円/月)

一世帯につき一区画使用可能(要申請)

駐輪場
物置
上下水道 上水道・下水道
ガス種別 プロパンガス
エレベーター
ひかりインターネット

未導入

学区

井伊谷小学校

引佐南部中学校

入居条件の緩和

備考

スーパーマーケット(Aコープ引佐店)徒歩5分

内部写真・間取り図

玄関
井伊谷玄関

台所
井伊谷台所

トイレ
井伊谷トイレ

風呂
井伊谷風呂

部屋内部(和室)
井伊谷和室

部屋内部(洋室)
井伊谷ダイニング

間取り

井伊谷図面

外観

井伊谷外観

画像はあくまで一例です。

このページのよくある質問

よくある質問の一覧を見る

お問い合わせ

浜松市役所都市整備部住宅課

〒430-8652 浜松市中央区元城町103-2

電話番号:053-457-2455

ファクス番号:050-3730-5234

より良いウェブサイトにするためにみなさまのご意見をお聞かせください

このページの情報は役に立ちましたか?

このページの情報は見つけやすかったですか?